Wir sind Partner für alle, die etwas bewegen wollen.

 

Wurzelwerk Naturgarten AG entwickelt, baut und pflegt Grünflächen im Siedlungsraum sowie in der freien Landschaft. 

 

Mit einer durchdachten Gestaltung liefern wir ökologische sowie ökonomische Vorteile und bringen Leben in ihre Bude.

 

Wir setzen Prioritäten, zeigen Machbarkeiten auf und schaffen Synergien.

Egal was das momentane Budget sagt, unsere Projekte sind auch in Etappierungen realisierbar.  

 

 

Naturnahe Aussenräume – Ihr Mehrwert

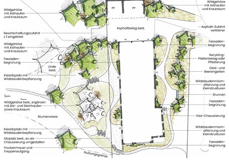
Planung

Naturgarten Planung naturnah nachhaltig

Mit Fingerspitzengefühl wird am Zeichnungstisch Ihr zukünftiges individuelles Gartenparadies entwickelt. Ihre Ideen und Träume sind die Bausteine, die zu einem harmonischen Ganzen zusammengefügt werden wollen. Wurzelwerk plant Ihre Grünfläche mit Sorgfalt, Liebe und der Erfahrung aus jahrelanger hingebungsvoller Tätigkeit. Dabei stehen Nachhaltigkeit, Vernetzung und Vielfalt in Symbiose mit Nutzung, Gestaltung und dem ökologischen Potential einer Gartenanlage. In der Gesamtkonzeptierung können Projektpläne, Baugesuche, Ausführungs- und Detailplanung angeboten werden.

Bepflanzungen

Naturgarten Bepflanzung nachhaltig naturnah einheimisch

Pflanzen sind lebendige Kunstwerke, die durch Farbenpracht, Duft und nicht zuletzt kulinarische Qualitäten zu entzücken vermögen. Durch die Verwendung von einheimischer und standortgerechter Vegetation in pflanzensoziologischen Gemeinschaften entstehen vielfältige, spannende und ökologisch wertvolle Pflanzkonzepte. Das bewusste Integrieren von Kleinstrukturen in die Bepflanzung bereichert die Lebensräume von Flora und Fauna und lässt ausdrucksstarke Pflanzenbilder entstehen. Gut durchdachte und naturnahe Bepflanzungen sind pflegeextensiv und lassen sich selbst erhaltende Biotope entstehen.


Gartenpflege

Naturgarten Gartenpflege nachhaltig naturnah

Ein klug angelegter Naturgarten verlangt nicht viel Pflege. Hier und da darf mit liebevoller Hand eingegriffen werden, doch die Lebensräume Ihrer Gartenmitbewohner sollen so wenig wie möglich gestört werden. Denn schliesslich sind es diese kleinen Lebewesen, welche den Grossteil der Arbeit übernehmen, während Sie Ihre Grünfläche geniessen dürfen. In den Pflegekonzepten von Wurzelwerk wird mit den "Mechanismen" der Natur selbst gearbeitet – dies schont nicht nur Ressourcen, sondern auch Ihren Rücken und obendrein werden Kosten eingespart.

 

In der Pflege gilt generell: Weniger ist mehr. Lesen Sie dazu auch unsere wertvollen Pflegetipps.

Gartenbau

Naturgarten Gartenbau nachhaltig naturnah

Nach einer sorgfältigen und fundierten Planung folgt die Realisierung Ihres Gartentraums. Aus Zeichnungen und Plänen werden endlich Blumenbeete, Trockenmauern und Wasserflächen. Es ist die Geburtsstunde Ihres Paradieses: Das Wachstum setzt ein, das Leben beginnt.


Artenförderung & Ökologie

Naturgarten Artenförderung Aufwertungen Ökologie nachhaltig naturnah

Wir sind Partner und Fachbetrieb für alle Maßnahmen, die darauf abzielen, Lebensräume zu erhalten, zu verbessern oder neu zu schaffen, sodass gefährdete Tier- und Pflanzenarten langfristig bestehen können. Unsere Dienstleistung reicht von der Analyse vorhandener Lebensräume über die Planung gezielter Fördermaßnahmen bis hin zur praktischen Umsetzung. Ziel ist es, die Artenvielfalt zu stärken, natürliche Ressourcen zu schützen und nachhaltige, widerstandsfähige Ökosysteme zu fördern, die sowohl der Natur als auch uns Menschen zugutekommen.

Beratungen & Kurse

Naturgarten Kurse Weiterbildung nachhaltig naturnah

Wir vermitteln praxisnahes Wissen rund um den Schutz und die Förderung heimischer Tier- und Pflanzenarten. In unseren Beratungen und Kursangeboten lernen Interessierte, ökologische Zusammenhänge zu verstehen, Lebensräume zu beurteilen und geeignete Maßnahmen für mehr Vielfalt zu entwickeln. Ob Begehungen vor Ort, Workshops oder Exkursionen– die Angebote richten sich an Naturschutzinteressierte, Fachpersonen und Gemeinden gleichermaßen. Ziel ist es, Kompetenzen aufzubauen, Bewusstsein zu schaffen und Menschen aktiv in den Erhalt unserer natürlichen Lebensgrundlagen einzubeziehen.